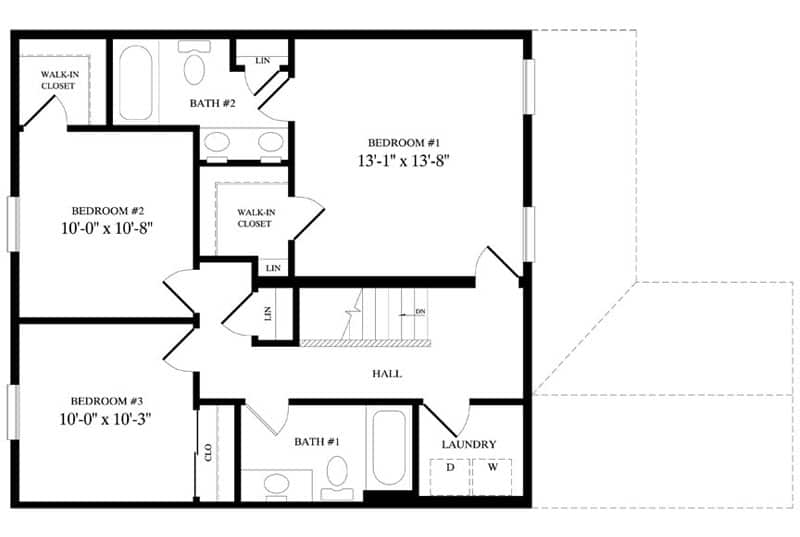
Triple unit modular home. Each of the 3 units offer 3 bedrooms, 2 1/2 bathrooms, large master suite with walk in closet, second floor laundry room and attached one car garage.
Bridgewater
- Multi Family
- 3
- 2.5
- 1845
- View the pdf
Click the images below to view larger
View More Floorplans

Multi Family
Canadaiqua
The end unit of a 6 unit multi-family modular home. This one story unit has 2 bedrooms, 2 bathrooms, full laundry room off the attached

